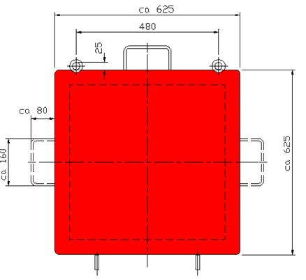
1.1 Channel Inflow Cover BL/KMS-625

Article Index: 110(NS), 120(ES)

Dimensions:

Standard 625 x 625 x 10 mm

Weight:

Standard approx. 32.5 kg


1.1.1 Description

Flectra text and image block


Suitable for crack-free surfaces with up to 40 mm of floor/ground unevenness on concrete and asphalt, e.g. concrete grooves, standard inflows according to DIN, etc.

The drain cover is designed as a heavy, massive steel plate. The weight of approx. 32.5 kg is necessary in order to compress a special seal applied around the bottom side and to adapt the seal to the unevenness of the floor/ground. The cover can be driven over by light vehicles such as motorcycles, passenger cars, forklifts and also, if needed multiple times by trucks without being damaged.

In order to accommodate transport by hand, two lateral handles are provided and one handle on the top. For safe conveyance to the location of employment (in conformity with accident prevention measures), we recommended a "Trolley" as transport aid. In connection with this, two massive pins have been included on the side across from the top-side handle and the wall mount eyelets with which the cover can be lifted by transport cart BL/TKN.

The drain cover is made of normal steel, primed, painted or powder coated, generally with a red finish ("traffic red" RAL 3020).

Upon request, the cover can be galvanized or provided in a superior-alloy steel design.


Features:

  • Universal implementation, capable of being driven over


  • Chemical resistant seal

  • Field-tested

Available in our shop!