Doorway Spill Barrier and Retention Barrier BL/BTL


The Containment Barrier BL/BTL is particularly designed for doorways. It is the ideal solution, wherever space is extremely restricted. 

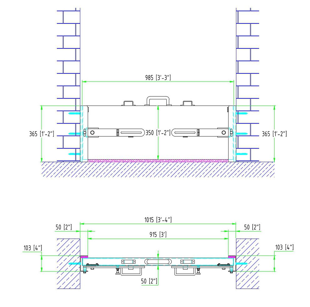
The U-shaped receivers are very narrow and also adopt optimally to industrial door frames. To seal the door, the spill barrier body is simply placed between the receivers. With the levers mounted on the containment barrier body, the containment system is easily locked in palace. 


The Spill Barrier is ideal to seal:

- Emergency exits

- Doorways

- Laboratories 


Flectra text and image block

Dimensions


Standard height:

100–350 mm


Standard length:

750–6000 mm


Special situations:

upon request


Width:

50 mm






Flectra text and image block